The Building
Overview
▶
Accommodation
▶
Gallery
▶
Well-being
Overview
▶
Location
Local Area
▶
Local Amenities
▶
Connectivity
▶
Further Information
Downloads
▶
Contact
▶
The Building
Overview
▶
Design Ethos
▶
Summary Specification
Accommodation
▶
Availability
▶
Floor Plans
Gallery
Well-being
Overview
▶
On the Inside
▶
On the Outside
Location
Overview
▶
The Perfect Location
▶
Key Locations
Local Amenities
▶
Amenities Map
▶
Islington
▶
King's Cross
Connectivity
Further Information
Downloads
Contacts
Accommodation
Space
that works
for you
Availability
Floor
Finish
sq ft
NIA
sq m
NIA
Sixth
Terrace
CAT A
Let
Fifth
Terrace
CAT A
Let
Fourth
CAT A
Let
Third
Terrace
CAT B
Let
Part Second
Plug & Play
5,560
516.5
First
Terrace A
Terrace B
CAT A
Let
Ground
Ancillary
CAT A
CAT A
Let
Lower Ground
Ancillary
CAT A
CAT A
Let
Total
5,560
516.5
*Subject to final measurement upon completion of development.
Ancillary space is reserved for Small to Medium Enterprises (SME)
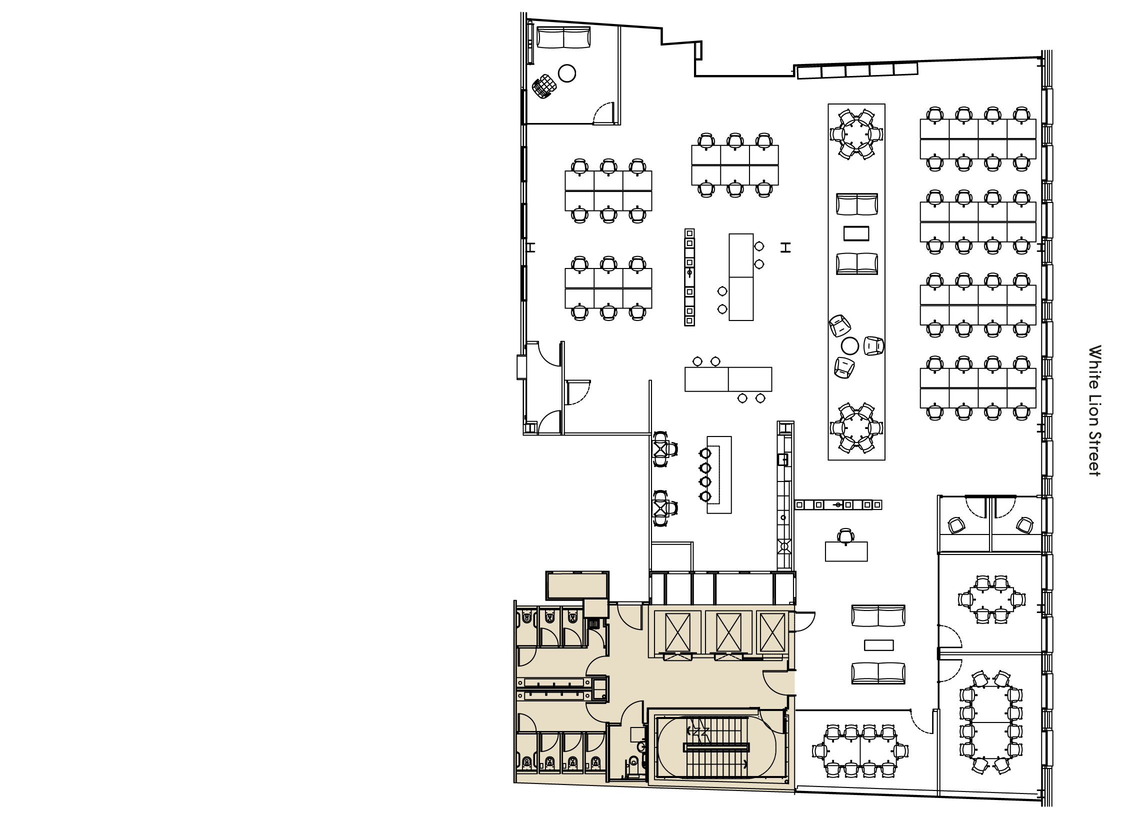
Floor Plans
PDF
Part Second Floor
Office (Plug & Play)
5,560 sq ft / 516.5 sq m
Workstations
50
12 person boardroom
01
10 person meeting room
01
6 person meeting room
01
Executive office
01
Kitchen / breakout area
01
Lounge area
01
Call pods
02
Reception
01
Office
Core
Floor plans not to scale.
For indicative purposes.
Fully Fitted Part Second Floor Workspace
Part Second Floor Kitchen / Breakout
Part Second Floor Reception
Well-being /
Inside
and out
Gallery /
See more
clearly
Overview /
Design
led office